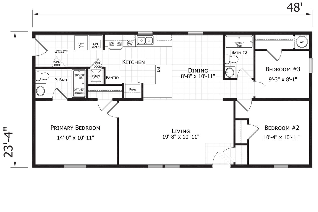
1120 Square Feet
This manufactured home is built to the federal (HUD) building code for manufactured housing.
Dutch Housing stands out for its quality, innovation, and customer satisfaction. Since 1991, they’ve been offering customizable configurable homes that blend modern design with superior craftsmanship, setting a high benchmark in the industry.
Explore Dutch HousingContact a local retailer for home pricing. Additional fees, taxes, and delivery charges vary by region and home selected.
Get Local Pricing